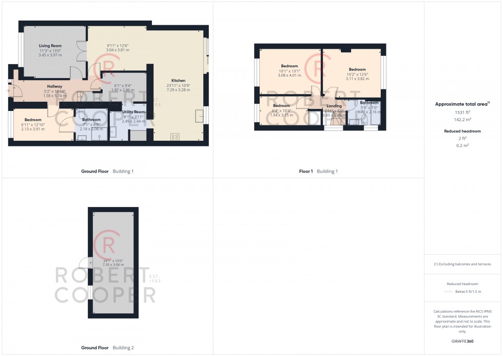
A modern four bedroom, two bathroom semi detached family home located on this popular residential side road within easy reach of Eastcote High Street. Features include open plan kitchen diner, off street parking, water based underfloor heating, private rear garden, outbuilding, utility room, potential to extend further stpp and 1,531 Sq Ft living accommodation. The property is 0.5 miles away from Eastcote High Street & Station (Metropolitan & Piccadilly Line) and 0.4 miles away from Newnham Infant & Primary School. Tenure - Freehold. Council Tax Band - E. EPC Rating - E.
  • • Semi Detached Family Home
  • • Four Bedrooms, Two Bathrooms
  • • Water Based Underfloor Heating
  • • Open Plan Kitchen Diner
  • • Off Street Parking
  • • Private Rear Garden
  • • Potential To Extend Further STPP
  • • Utility Room
  • • Walking Distance To Met/Piccadilly Line
  • • Catchment Area For Excellent Schools
Floorplan for Woodlands Avenue, Ruislip

Get a valuation

Find out how much your property is worth