Carlyon Avenue, Harrow

Under Offer Offers In Excess Of £575,000

3 2
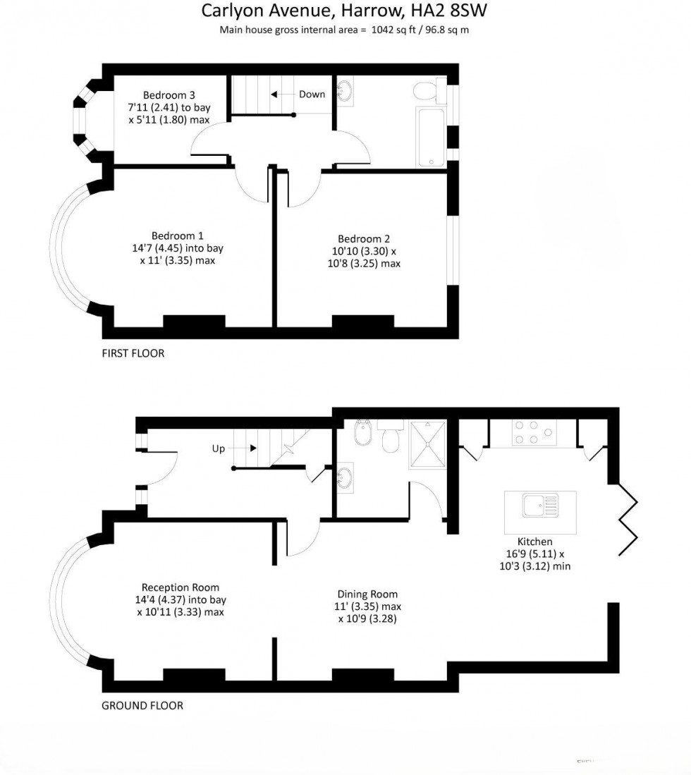
Presented in stunning condition throughout is this three bedroom semi-detached family home which offers modern living throughout, located on a popular residential road close to local schools, shops and transport links. Features include complete upper chain, ultra modern interiors, generously proportioned landscaped garden, large driveway, potential to extend further STPP and 1042 Sq Ft. The property is 1.1 miles away from South Harrow Station (Piccadilly Line) and 1.4 miles away from South Ruislip Station (Central Line/Chiltern Line). Tenure - Freehold Council Tax Band - D EPC Rating - D
  • • Semi Detached Family Home
  • • Three Bedrooms
  • • Ultra Modern Interiors
  • • Modern Fitted Kitchen
  • • Generously Proportioned Landscaped Garden
  • • Complete Upper Chain
  • • Large Driveway
  • • Potential To Extend STPP
  • • Walking Distance To Piccadilly/Central/Chiltern Line
  • • Catchment Area For Excellent Schools
Floorplan for Carlyon Avenue, Harrow
EPC Graph for Carlyon Avenue, Harrow

Get a valuation

Find out how much your property is worth