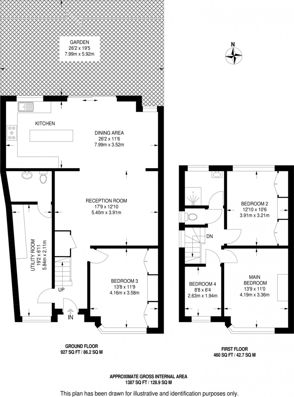
A well presented and extended three/four bedroom semi detached family home which has been extended to the side and is located on this popular residential road within easy reach of Rayners Lane High Street. Features include off street parking, large private rear garden, open plan living area, potential to extend further stpp and 1,387 Sq Ft. The property is 1.1 miles away from Rayners Lane High Street & Station and 0.5 miles away from Heathland Primary School. Tenure - Freehold Council Tax Band - D EPC Rating - D
  • • Semi Detached Family Home
  • • Large Private Rear Garden
  • • Open Plan Living Area
  • • Ground Floor Side & Rear Extension
  • • Potential To Extend Further STPP
  • • Off Street Parking
  • • No Upper Chain
  • • 1,387 Sq FT Living Accommodation
  • • Walking Distance To Met/Piccadilly Line
  • • Catchment Area For Excellent Schools
Floorplan for Alexandra Avenue, Harrow
EPC Graph for Alexandra Avenue, Harrow

Get a valuation

Find out how much your property is worth